Ich freue mich über Ihr Interesse und möchte Ihnen hier einen kleinen Einbilck in meine Tätigkeitsfelder geben.
Mehr erfahrenDas Büro, gegründet von mir, Norbert Wüsteney, existiert seit 1991. Auf Grund meines Studiums an der Universität Stuttgart und meiner langjährigen Erfahrung in den verschiedenen Bereichen der Vermessung kann ich Ihnen sach- und termingerechte Leistungen anbieten. Besonderen Wert lege ich auf vertrauensvolle Zusammenarbeit, Qualität und guten Service.
KompetenzenSeit 2010 setze ich das 3D-Laserscanning ein und bin Vorreiter auf diesem Gebiet. Heute zählt Laserscanning zu einer der wichtigsten Ergänzungen herkömmlicher Messmethoden. In Kombination mit klassischer Tachymeter-Vermessung und Photogrammetrie wird der Umfang der Aufnahme und die Darstellung individuell angepasst. Dies bietet Ihnen die geforderte Qualität zu günstigen Preisen.
Seit langer Zeit unterstützt die Photogrammetrie die Aufnahme von Bauwerken und Objekten. Heute zeigt sich immer wieder, dass selbst Aufnahmen, die schon 50 Jahre oder länger zurückliegen, für die Wissenschafts- und Bauforschungsarbeiten sehr wertvoll sind. Objekte werden dadurch qualitativ sehr hochwertig archiviert. Durch den Einsatz der digitalen Photogrammetrie wird die Möglichkeiten der rechnergestützten Auswertung mit hoher Effizienz genutzt.
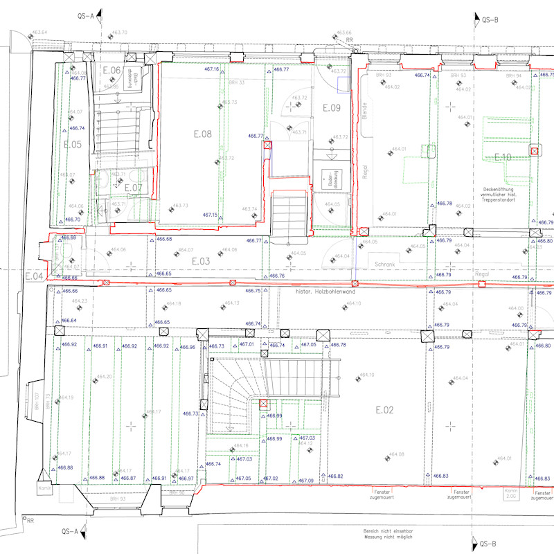
Bauaufnahmen geben detaillierte Erfassungen und Darstellung von Bauwerken wieder. Häufig werden unter Denkmalschutz stehende Gebäude detail- und verformungsgetreu aufgenommen und Pläne, den Anforderungen entprechend, erstellt. Die Umsetzung der Bauaufnahme erfolgt mit Messgeräten nach neusten technischen Standards. Alle Pläne erstelle ich im CAD, so dass die übergabe der Daten sowohl digital als auch analog erfolgt.
Abhängig von den schon vorhandenen Unterlagen prüfe ich individuell und entschiede ob eine Neuvermessung des zu bebauenden Geländes durchgeführt werden muss. Vorhandene und ermittelte Daten werden immer zusammengefügt und bilden eine stimmige Einheit. Somit erhält der Planer optimale Grundlagen und der Bauherr Sicherheit für sein Bauvorhaben. Auf Wunsch kann auch mit der örtlichen Umgebung vorab visualisiert werden.
Baumaßnahmen, insbesondere in denkmalgeschützer Umgebung, können aufwändig und kostenintensiv sein. Mit regelmäßiger Erfassung von Gebäuden im Innen- und Außenbereich können Verformungen frühzeitig und präzise erkannt werden. Daraus abgeleitete Sanierungskonzepte sichern Bauwerke nachhaltig. Ich setze auf gute und lange Zusammenarbeit mit meinen Kunden und kann Sie in dieser Thematik optimal beraten und begleiten.
In Kombination mit den vorgestellten Methoden können realistische und geometrisch exakte Darstellungen eines Bauvorhabens erstellt werden. Visualisierung spielt eine wichtige Rolle im Vorfeld der Planung, um die Interessen und Vorstellungen von Projektpartnern und Interessenvertretern zusammen zu führen. Auch Foto- und Videosequenzen können aus durchgeführten Bestandsaufnahmen für Visualisierungen herangezogen werden und liefern anschauliche Objekteindrücke.
über Ihre Anfrage in meinem Büro persönlich, per Telefon oder per E-Mail freue ich mich.